takeofficeなら掲載物件の仲介手数料は無料です

PMO八丁堀

住所 東京都中央区八丁堀3-22-13
交通 東京メトロ日比谷線八丁堀」 徒歩1分
東京メトロ日比谷線茅場町」 徒歩6分
竣工 2009年05月 構造 鉄骨造+SRC
規模 地上9階, 地下1階 耐震基準 新耐震基準
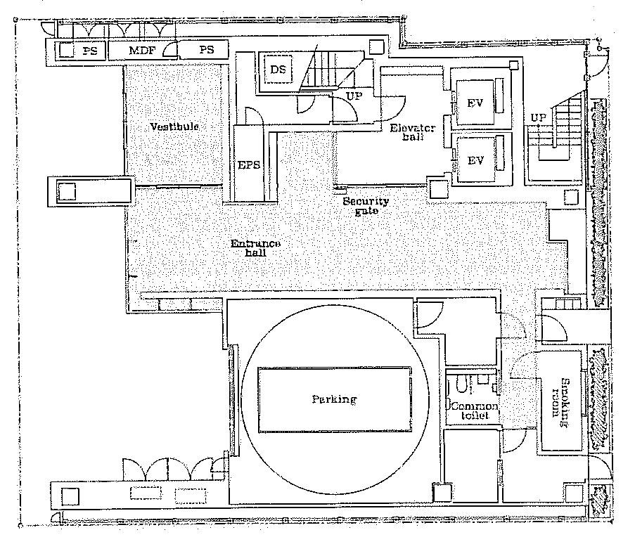
床構造 フリーアクセス 100mm 空調設備 個別空調
天井高 2800mm 基準階面積 78.47坪(259.4m2)
コンセント容量 60VA/m2 施工会社 間組
坪面積 用途 賃料 坪単価 共益費 入居可能日
7 78.47坪 事務所 相談 相談 相談 2026年5月中旬
4 78.47坪 事務所 相談 相談 相談 2026年2月1日
PMO八丁堀 外観

外観

建物パンフレット

建物パンフレットは作成時点のものであり、また計画段階のものも含まれる為、実際とは異なる場合がございます。

内見やお見積りなどの各種お問い合わせ

全物件
仲介手数料無料
仲介から
入居工事まで
ワンストップで対応
経験豊富なスタッフが
スピード感をもって
対応

※「ご相談」と記載されている項目について
賃貸人が募集賃料条件を守秘義務の関係から明示していない場合に、【ご相談】と記載しております。
フリーレント(賃料免除)期間、使用面積、入居時期、テナント様の与信などによりご提示できる条件が若干変化いたします。
お手数ですが、詳細につきましては、上記よりお問い合わせください。

周辺での似た条件の物件

非公開物件 多数あり!

お問い合わせフォーム