takeofficeなら掲載物件の仲介手数料は無料です

大和茅場町ビル

住所 東京都中央区日本橋茅場町1-1-11
交通 東京メトロ東西線茅場町」 徒歩3分
東京メトロ銀座線日本橋」 徒歩5分
東京メトロ日比谷線人形町」 徒歩9分
竣工 2010年04月 構造 SRC+鉄骨造
規模 地上8階, 地下1階 耐震基準 新耐震基準
床構造 フリーアクセス 100mm 空調設備 ゾーン空調
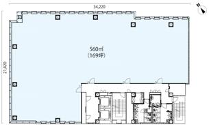
天井高 2700mm 基準階面積 169.51坪(560.36m2)
コンセント容量 75VA/m2 施工会社

最新の募集状況や類似物件については、
こちらにお問い合わせください。

大和茅場町ビル 外観

外観

内見やお見積りなどの各種お問い合わせ

全物件
仲介手数料無料
仲介から
入居工事まで
ワンストップで対応
経験豊富なスタッフが
スピード感をもって
対応

周辺での似た条件の物件

非公開物件 多数あり!

お問い合わせフォーム