takeofficeなら掲載物件の仲介手数料は無料です

日経茅場町第2別館

住所 東京都中央区日本橋茅場町1-7-5
交通 東京メトロ東西線茅場町」 徒歩2分
東京メトロ銀座線日本橋」 徒歩4分
JR京葉線八丁堀」 徒歩9分
竣工 1992年11月 構造 鉄骨造+RC
規模 地上7階, 地下1階 耐震基準 新耐震基準
床構造 - 空調設備 個別空調
天井高 - 基準階面積 52.42坪(173.29m2)
コンセント容量 - 施工会社

最新の募集状況や類似物件については、
こちらにお問い合わせください。

日経茅場町第2別館 外観

外観

  • 日経茅場町第2別館 エントランス写真

    エントランス

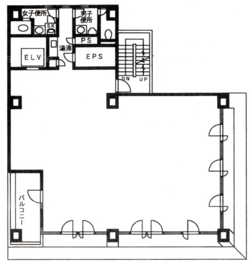
  • 基準階(2~4F)

    基準階(2~4F)

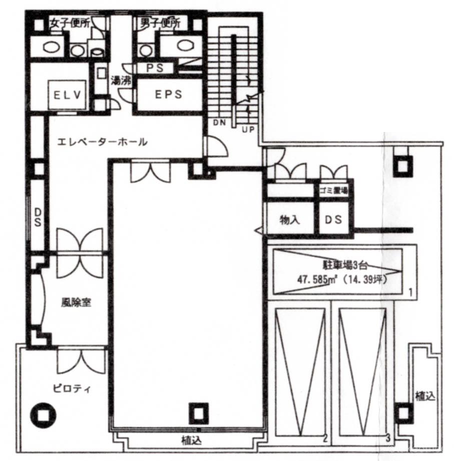
  • 1F

    1F

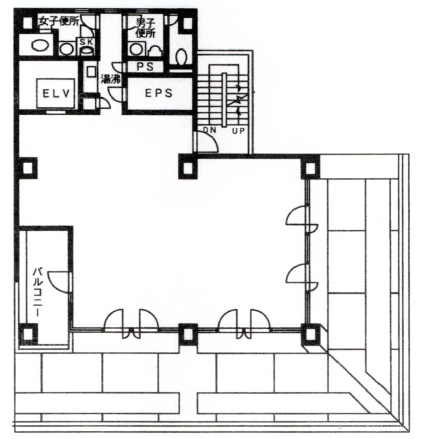
  • 5F

    5F

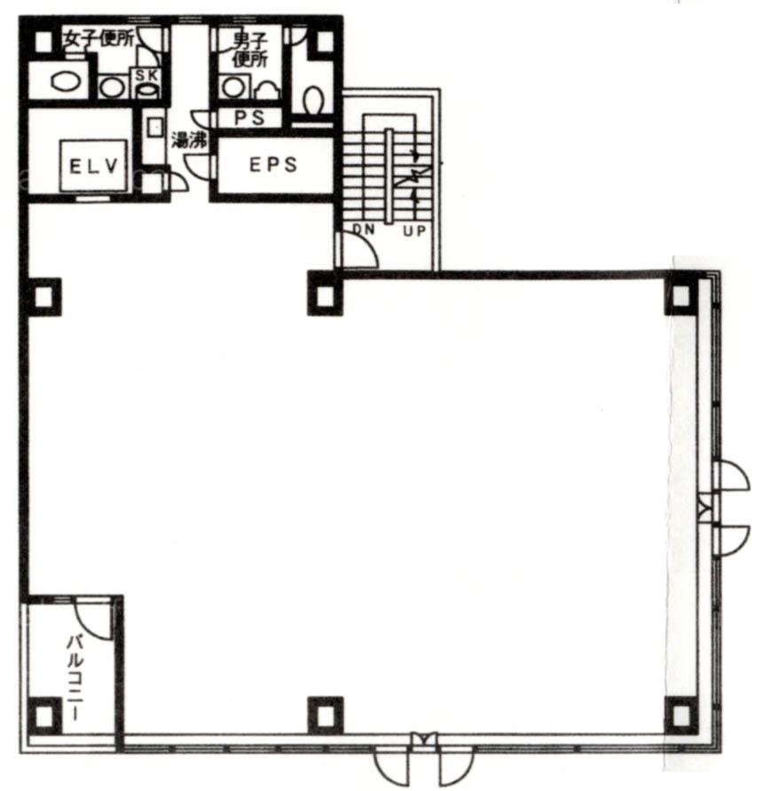
  • 6F

    6F

内見やお見積りなどの各種お問い合わせ

全物件
仲介手数料無料
仲介から
入居工事まで
ワンストップで対応
経験豊富なスタッフが
スピード感をもって
対応

周辺での似た条件の物件

非公開物件 多数あり!

お問い合わせフォーム