takeofficeなら掲載物件の仲介手数料は無料です

新川1丁目ビル(旧:ミリオン商事新川ビル)

住所 東京都中央区新川1-15-2
交通 東京メトロ東西線茅場町」 徒歩6分
竣工 1973年02月 構造 RC
規模 地上6階, 地下1階 耐震基準 旧耐震基準
床構造 - 空調設備 個別空調
天井高 - 基準階面積 --
コンセント容量 - 施工会社

最新の募集状況や類似物件については、
こちらにお問い合わせください。

新川1丁目ビル(旧:ミリオン商事新川ビル) 外観

外観

  • NOW PRINTING

    エントランス

  • 2F

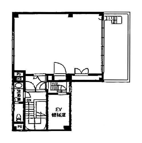
    2F

  • 1F

    1F

  • 3F

    3F

  • 4F

    4F

  • 5F

    5F

  • 6F

    6F

内見やお見積りなどの各種お問い合わせ

全物件
仲介手数料無料
仲介から
入居工事まで
ワンストップで対応
経験豊富なスタッフが
スピード感をもって
対応

周辺での似た条件の物件

非公開物件 多数あり!

お問い合わせフォーム