takeofficeなら掲載物件の仲介手数料は無料です

東石ビル

住所 東京都中央区日本橋茅場町2-2-1
交通 東京メトロ東西線茅場町」 徒歩3分
東京メトロ銀座線日本橋」 徒歩8分
竣工 2014年04月 構造 鉄骨造
規模 地上9階 耐震基準 新耐震基準
床構造 フリーアクセス 50mm 空調設備 個別空調
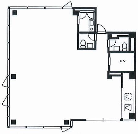
天井高 2700mm 基準階面積 31.27坪(103.37m2)
コンセント容量 - 施工会社

最新の募集状況や類似物件については、
こちらにお問い合わせください。

東石ビル 外観

外観

内見やお見積りなどの各種お問い合わせ

全物件
仲介手数料無料
仲介から
入居工事まで
ワンストップで対応
経験豊富なスタッフが
スピード感をもって
対応

周辺での似た条件の物件

非公開物件 多数あり!

お問い合わせフォーム