| 住所 | 東京都中央区日本橋茅場町2-1-1 | ||
|---|---|---|---|
| 交通 |
東京メトロ日比谷線 「茅場町」 徒歩1分 東京メトロ銀座線 「日本橋」 徒歩4分 |
||
| 竣工 | 1981年07月 | 構造 | SRC |
|---|---|---|---|
| 規模 | 地上8階, 地下2階 | 耐震基準 | 新耐震基準 |
| 床構造 | フリーアクセス 80mm | 空調設備 | セントラル空調 |
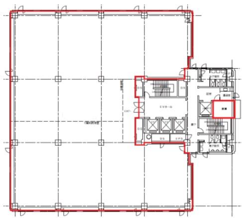
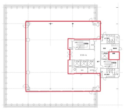
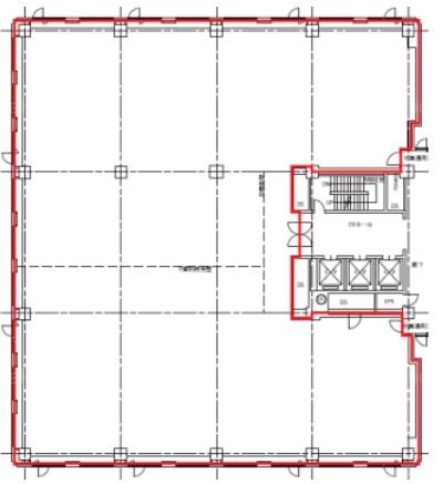
| 天井高 | 2470mm | 基準階面積 | 285.62坪(944.2m2) |
| コンセント容量 | 80VA/m2 | 施工会社 | 戸田建設、大林組、鹿島建設、清水建設、大成建設 |
| 階 | 坪面積 | 用途 | 賃料 | 坪単価 | 共益費 | 入居可能日 |
|---|---|---|---|---|---|---|
| 5 | 285.52坪 | 事務所 | 募集終了登録日: 2023年09月14日 | |||
| 6 | 285.52坪 | 事務所 | 募集終了登録日: 2023年09月14日 | |||
※「ご相談」と記載されている項目について
賃貸人が募集賃料条件を守秘義務の関係から明示していない場合に、【ご相談】と記載しております。
フリーレント(賃料免除)期間、使用面積、入居時期、テナント様の与信などによりご提示できる条件が若干変化いたします。
お手数ですが、詳細につきましては、上記よりお問い合わせください。