takeofficeなら掲載物件の仲介手数料は無料です

第1田村ビルディング

住所 東京都中央区銀座1-4-9
交通 東京メトロ有楽町線銀座一丁目」 徒歩1分
JR山手線有楽町」 徒歩4分
竣工 1966年 構造 SRC
規模 地上9階, 地下0階 耐震基準 旧耐震基準
床構造 - 空調設備 個別空調
天井高 2500mm 基準階面積 26坪(87m2)
コンセント容量 - 施工会社

最新の募集状況や類似物件については、
こちらにお問い合わせください。

第1田村ビルディング 外観

外観

  • 第1田村ビルディング エントランス写真

    エントランス

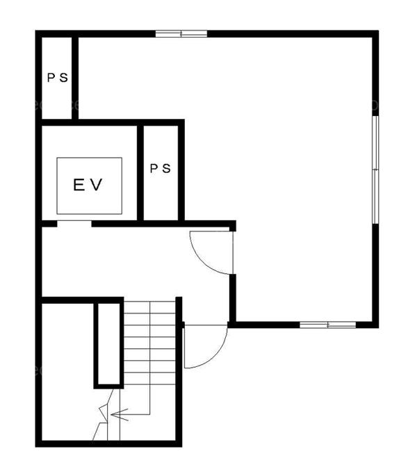
  • 基準階(3~7F)

    基準階(3~7F)

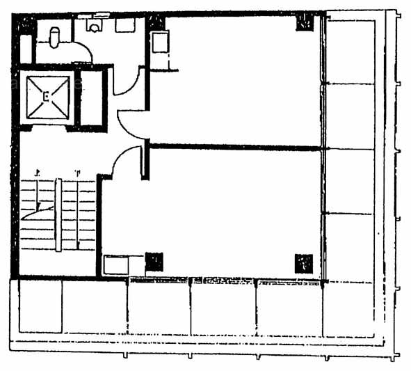
  • 8F

    8F

  • 9F

    9F

内見やお見積りなどの各種お問い合わせ

全物件
仲介手数料無料
仲介から
入居工事まで
ワンストップで対応
経験豊富なスタッフが
スピード感をもって
対応

周辺での似た条件の物件

非公開物件 多数あり!

お問い合わせフォーム