takeofficeなら掲載物件の仲介手数料は無料です

銀座クリスタルタワー

住所 東京都中央区銀座1-5-11
交通 東京メトロ有楽町線銀座一丁目」 徒歩1分
東京メトロ銀座線銀座」 徒歩5分
JR山手線東京」 徒歩9分
竣工 2003年01月 構造 SRC
規模 地上10階, 地下1階 耐震基準 新耐震基準
床構造 フリーアクセス 空調設備 個別空調
天井高 2700mm 基準階面積 --
コンセント容量 - 施工会社

最新の募集状況や類似物件については、
こちらにお問い合わせください。

銀座クリスタルタワー 外観

外観

  • 銀座クリスタルタワー エントランス写真

    エントランス

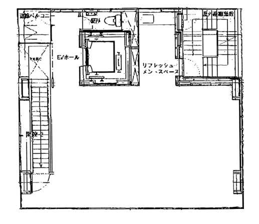
  • 4F

    4F

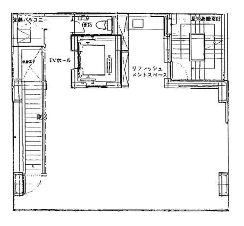
  • 5F

    5F

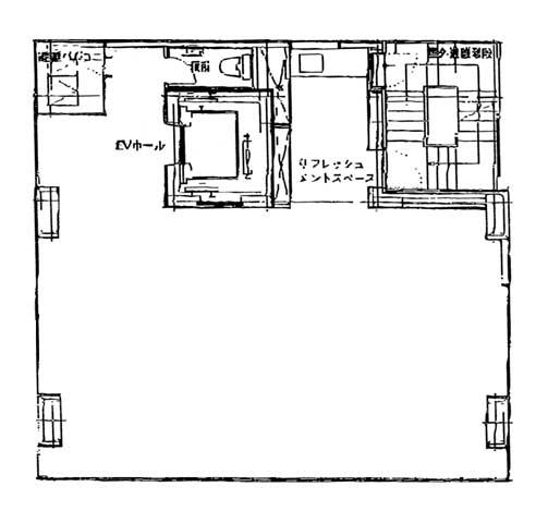
  • 6F

    6F

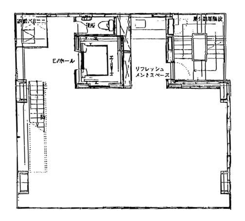
  • 7~8F

    7~8F

内見やお見積りなどの各種お問い合わせ

全物件
仲介手数料無料
仲介から
入居工事まで
ワンストップで対応
経験豊富なスタッフが
スピード感をもって
対応

周辺での似た条件の物件

非公開物件 多数あり!

お問い合わせフォーム