takeofficeなら掲載物件の仲介手数料は無料です

ヒューリック銀座ビル(旧:銀座富士ビル)

住所 東京都中央区銀座1-7-10
交通 東京メトロ有楽町線銀座一丁目」 徒歩1分
東京メトロ銀座線銀座」 徒歩4分
JR山手線有楽町」 徒歩4分
竣工 1974年04月 構造 SRC
規模 地上9階, 地下2階 耐震基準 新耐震基準
床構造 フリーアクセス 70mm 空調設備 個別空調
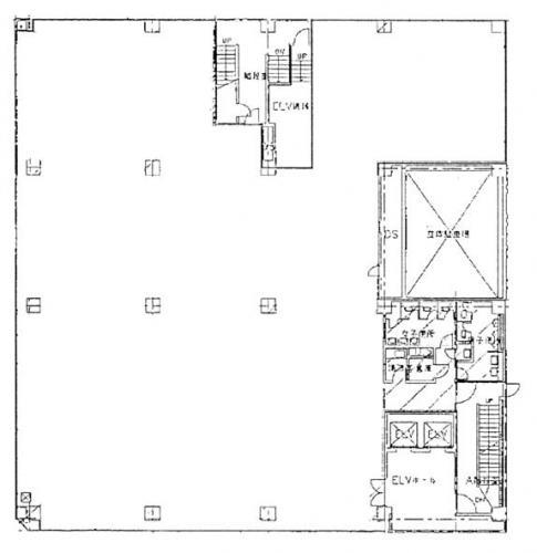
天井高 2530mm 基準階面積 234.2坪(774.21m2)
コンセント容量 - 施工会社

最新の募集状況や類似物件については、
こちらにお問い合わせください。

ヒューリック銀座ビル(旧:銀座富士ビル) 外観

外観

  • NOW PRINTING

    エントランス

  • 基準階

    基準階

  • 1F

    1F

  • 3F

    3F

  • 5F

    5F

  • 7F

    7F

  • 8~9F

    8~9F

内見やお見積りなどの各種お問い合わせ

全物件
仲介手数料無料
仲介から
入居工事まで
ワンストップで対応
経験豊富なスタッフが
スピード感をもって
対応

周辺での似た条件の物件

非公開物件 多数あり!

お問い合わせフォーム