takeofficeなら掲載物件の仲介手数料は無料です

鹿倉ビル

住所 東京都中央区銀座1-28-12
交通 東京メトロ有楽町線新富町」 徒歩1分
東京メトロ日比谷線東銀座」 徒歩4分
東京メトロ銀座線銀座」 徒歩7分
竣工 1962年 構造 SRC
規模 地上5階, 地下1階 耐震基準 旧耐震基準
床構造 3WAY 空調設備 個別空調
天井高 2600mm 基準階面積 56坪(185m2)
コンセント容量 - 施工会社

最新の募集状況や類似物件については、
こちらにお問い合わせください。

鹿倉ビル 外観

外観

  • 鹿倉ビル エントランス写真

    エントランス

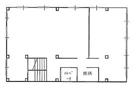
  • 2F

    2F

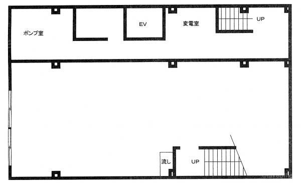
  • 1F

    1F

  • 3F

    3F

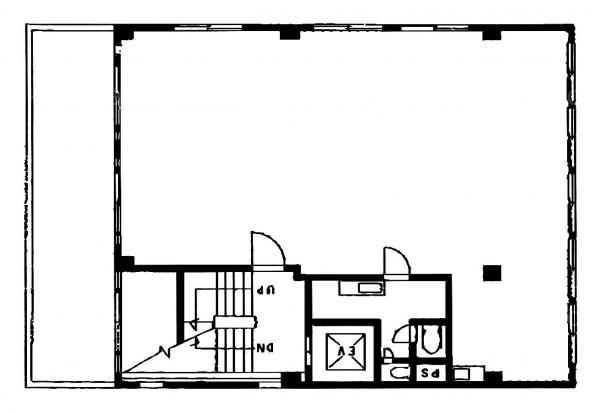
  • 4F

    4F

  • 5F

    5F

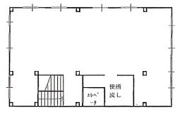
  • B1F

    B1F

内見やお見積りなどの各種お問い合わせ

全物件
仲介手数料無料
仲介から
入居工事まで
ワンストップで対応
経験豊富なスタッフが
スピード感をもって
対応

周辺での似た条件の物件

非公開物件 多数あり!

お問い合わせフォーム