takeofficeなら掲載物件の仲介手数料は無料です

ヒューリック西銀座第2ビル(旧:新西銀座第2ビル)

住所 東京都中央区銀座2-2-4
交通 東京メトロ有楽町線銀座一丁目」 徒歩2分
JR山手線有楽町」 徒歩5分
JR山手線東京」 徒歩10分
竣工 1964年11月 構造 SRC
規模 地上7階, 地下1階 耐震基準 新耐震基準
床構造 フリーアクセス 50mm 空調設備 個別空調
天井高 2450mm 基準階面積 37.94坪(125.43m2)
コンセント容量 80VA/m2 施工会社

最新の募集状況や類似物件については、
こちらにお問い合わせください。

ヒューリック西銀座第2ビル(旧:新西銀座第2ビル) 外観

外観

  • ヒューリック西銀座第2ビル(旧:新西銀座第2ビル) エントランス写真

    エントランス

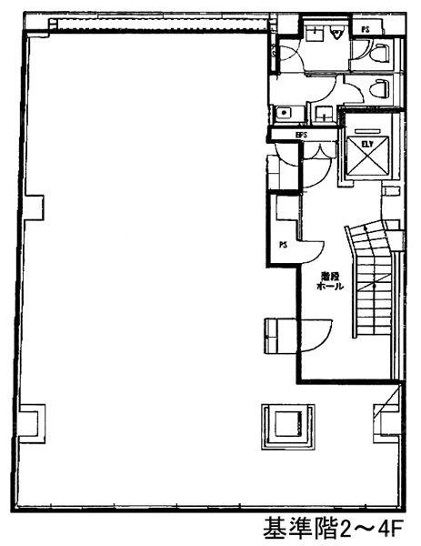
  • 基準階(2~4F)

    基準階(2~4F)

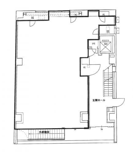
  • 1F

    1F

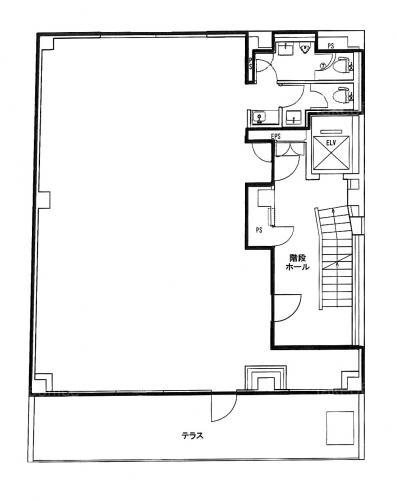
  • 5F

    5F

  • 6F

    6F

  • 7F

    7F

  • B1F

    B1F

内見やお見積りなどの各種お問い合わせ

全物件
仲介手数料無料
仲介から
入居工事まで
ワンストップで対応
経験豊富なスタッフが
スピード感をもって
対応

周辺での似た条件の物件

非公開物件 多数あり!

お問い合わせフォーム