takeofficeなら掲載物件の仲介手数料は無料です

銀座貿易ビル

住所 東京都中央区銀座2-7-18
交通 東京メトロ有楽町線銀座一丁目」 徒歩1分
東京メトロ銀座線銀座」 徒歩4分
JR山手線有楽町」 徒歩6分
竣工 1971年08月 構造 SRC
規模 地上8階, 地下3階 耐震基準 旧耐震基準
床構造 フリーアクセス 空調設備 セントラル空調
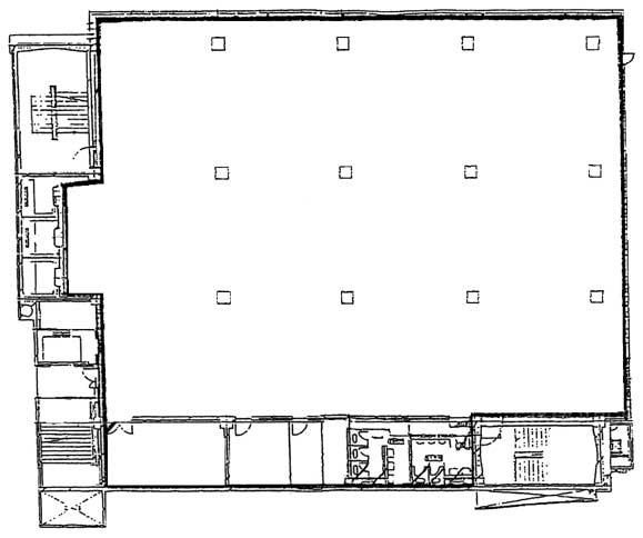
天井高 2600mm 基準階面積 305.82坪(1010.98m2)
コンセント容量 40VA/m2 施工会社

最新の募集状況や類似物件については、
こちらにお問い合わせください。

NOW PRINTING

外観

  • NOW PRINTING

    エントランス

  • 基準階

    基準階

内見やお見積りなどの各種お問い合わせ

全物件
仲介手数料無料
仲介から
入居工事まで
ワンストップで対応
経験豊富なスタッフが
スピード感をもって
対応

周辺での似た条件の物件

非公開物件 多数あり!

お問い合わせフォーム