takeofficeなら掲載物件の仲介手数料は無料です

石川ビル

住所 東京都中央区銀座2-8-5
交通 東京メトロ有楽町線銀座一丁目」 徒歩1分
竣工 1985年10月 構造 鉄骨造+RC
規模 地上9階, 地下1階 耐震基準 新耐震基準
床構造 - 空調設備 個別空調
天井高 2500mm 基準階面積 29.4坪(97.19m2)
コンセント容量 - 施工会社

最新の募集状況や類似物件については、
こちらにお問い合わせください。

石川ビル 外観

外観

  • 石川ビル エントランス写真

    エントランス

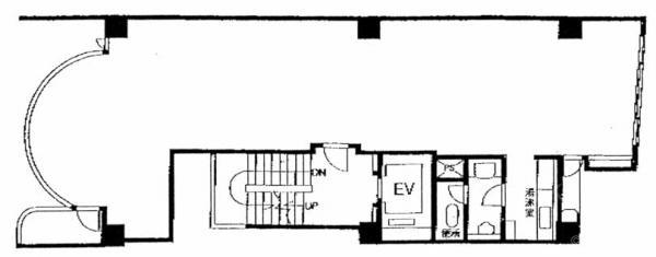
  • 基準階(5~6F)

    基準階(5~6F)

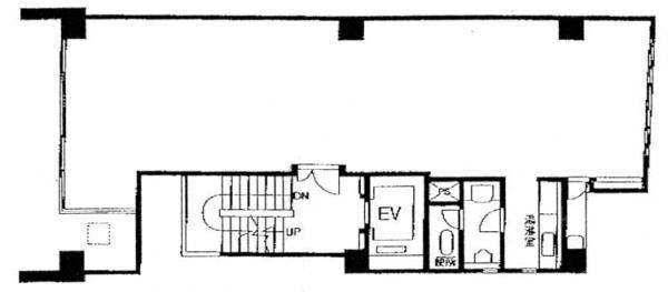
  • 7F

    7F

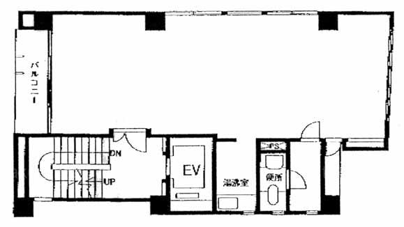
  • 9F

    9F

内見やお見積りなどの各種お問い合わせ

全物件
仲介手数料無料
仲介から
入居工事まで
ワンストップで対応
経験豊富なスタッフが
スピード感をもって
対応

周辺での似た条件の物件

非公開物件 多数あり!

お問い合わせフォーム