takeofficeなら掲載物件の仲介手数料は無料です

銀座山岸ビル

住所 東京都中央区銀座2-10-6
交通 東京メトロ銀座線銀座」 徒歩3分
都営浅草線東銀座」 徒歩3分
東京メトロ有楽町線銀座一丁目」 徒歩2分
竣工 1984年06月 構造 SRC
規模 地上9階 耐震基準 新耐震基準
床構造 - 空調設備 個別空調
天井高 - 基準階面積 32.67坪(108m2)
コンセント容量 - 施工会社

最新の募集状況や類似物件については、
こちらにお問い合わせください。

銀座山岸ビル 外観

外観

  • 銀座山岸ビル エントランス写真

    エントランス

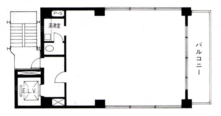
  • 基準階(2~5F)

    基準階(2~5F)

  • 1F

    1F

  • 6F

    6F

  • 7F

    7F

  • 8F

    8F

内見やお見積りなどの各種お問い合わせ

全物件
仲介手数料無料
仲介から
入居工事まで
ワンストップで対応
経験豊富なスタッフが
スピード感をもって
対応

周辺での似た条件の物件

非公開物件 多数あり!

お問い合わせフォーム