takeofficeなら掲載物件の仲介手数料は無料です

深山ビル

住所 東京都中央区銀座2-12-12
交通 東京メトロ日比谷線東銀座」 徒歩2分
東京メトロ有楽町線銀座一丁目」 徒歩5分
東京メトロ銀座線銀座」 徒歩5分
竣工 1971年05月 構造 SRC
規模 地上9階, 地下1階 耐震基準 旧耐震基準
床構造 フリーアクセス 50mm 空調設備 個別空調
天井高 2450mm 基準階面積 --
コンセント容量 - 施工会社

最新の募集状況や類似物件については、
こちらにお問い合わせください。

深山ビル 外観

外観

  • 深山ビル エントランス写真

    エントランス

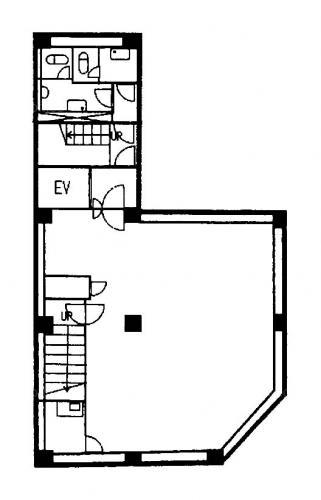
  • 基準階(2~8F)

    基準階(2~8F)

  • 1F

    1F

  • B1F

    B1F

内見やお見積りなどの各種お問い合わせ

全物件
仲介手数料無料
仲介から
入居工事まで
ワンストップで対応
経験豊富なスタッフが
スピード感をもって
対応

周辺での似た条件の物件

非公開物件 多数あり!

お問い合わせフォーム