| 住所 | 東京都中央区銀座2-16-7 | ||
|---|---|---|---|
| 交通 |
東京メトロ有楽町線 「新富町」 徒歩4分 東京メトロ日比谷線 「築地」 徒歩5分 都営浅草線 「東銀座」 徒歩6分 |
||
| 竣工 | 1977年08月 | 構造 | SRC |
|---|---|---|---|
| 規模 | 地上10階, 地下3階 | 耐震基準 | 新耐震基準 |
| 床構造 | フリーアクセス 50mm | 空調設備 | セントラル+個別 |
| 天井高 | 2340mm | 基準階面積 | 214.86坪(710.28m2) |
| コンセント容量 | 50VA/m2 | 施工会社 |
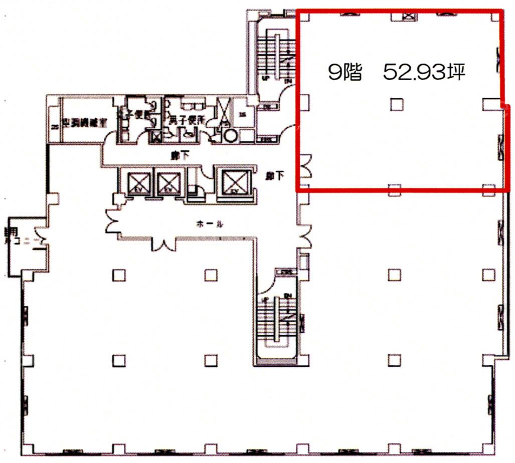
| 階 | 坪面積 | 用途 | 賃料 | 坪単価 | 共益費 | 入居可能日 |
|---|---|---|---|---|---|---|
| 2 | 75.75坪 | 事務所 | 募集終了登録日: 2024年04月30日 | |||
| 4 | 85.95坪 | 事務所 | 募集終了登録日: 2024年04月30日 | |||
※「ご相談」と記載されている項目について
賃貸人が募集賃料条件を守秘義務の関係から明示していない場合に、【ご相談】と記載しております。
フリーレント(賃料免除)期間、使用面積、入居時期、テナント様の与信などによりご提示できる条件が若干変化いたします。
お手数ですが、詳細につきましては、上記よりお問い合わせください。