takeofficeなら掲載物件の仲介手数料は無料です

マツザワ第6ビル(旧:井上商会ビル)

住所 東京都中央区銀座3-5-6
交通 東京メトロ銀座線銀座」 徒歩1分
東京メトロ有楽町線銀座一丁目」 徒歩2分
JR山手線有楽町」 徒歩7分
竣工 1980年06月 構造 RC+鉄骨造
規模 地上8階, 地下1階 耐震基準 旧耐震基準
床構造 - 空調設備 -
天井高 - 基準階面積 31坪(102m2)
コンセント容量 - 施工会社

最新の募集状況や類似物件については、
こちらにお問い合わせください。

マツザワ第6ビル(旧:井上商会ビル) 外観

外観

  • マツザワ第6ビル(旧:井上商会ビル) エントランス写真

    エントランス

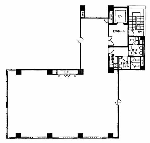
  • 基準階(3~6F)

    基準階(3~6F)

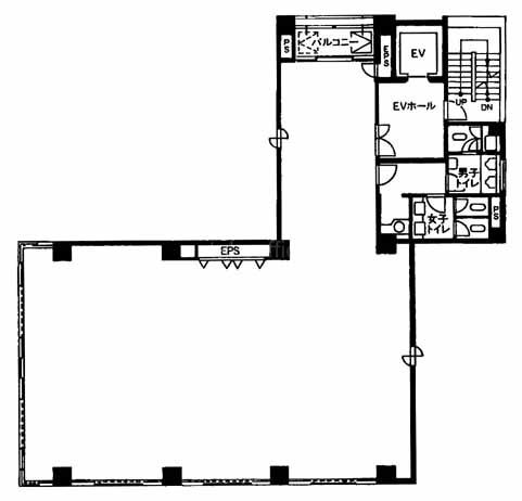
  • 1F

    1F

  • 2F

    2F

内見やお見積りなどの各種お問い合わせ

全物件
仲介手数料無料
仲介から
入居工事まで
ワンストップで対応
経験豊富なスタッフが
スピード感をもって
対応

周辺での似た条件の物件

非公開物件 多数あり!

お問い合わせフォーム