takeofficeなら掲載物件の仲介手数料は無料です

紙パルプ会館

住所 東京都中央区銀座3-9-11
交通 東京メトロ日比谷線東銀座」 徒歩2分
東京メトロ丸ノ内線銀座」 徒歩3分
東京メトロ有楽町線銀座一丁目」 徒歩4分
竣工 1993年09月 構造 RC+鉄骨造
規模 地上11階, 地下3階 耐震基準 新耐震基準
床構造 フリーアクセス 50mm 空調設備 個別空調
天井高 2550mm 基準階面積 166坪(548.76m2)
コンセント容量 - 施工会社

最新の募集状況や類似物件については、
こちらにお問い合わせください。

紙パルプ会館 外観

外観

  • 紙パルプ会館 エントランス写真

    エントランス

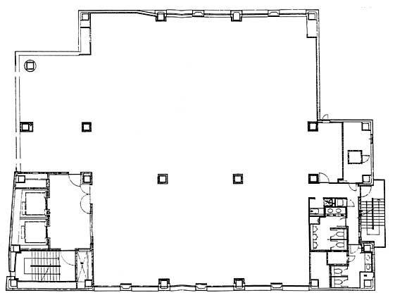
  • 基準階

    基準階

内見やお見積りなどの各種お問い合わせ

全物件
仲介手数料無料
仲介から
入居工事まで
ワンストップで対応
経験豊富なスタッフが
スピード感をもって
対応

周辺での似た条件の物件

非公開物件 多数あり!

お問い合わせフォーム