takeofficeなら掲載物件の仲介手数料は無料です

JRE銀座3丁目ビル

住所 東京都中央区銀座3-15-10
交通 東京メトロ日比谷線東銀座」 徒歩3分
東京メトロ日比谷線築地」 徒歩5分
東京メトロ有楽町線新富町」 徒歩5分
竣工 1998年10月 構造 鉄骨造
規模 地上8階, 地下1階 耐震基準 新耐震基準
床構造 フリーアクセス 80mm 空調設備 個別空調
天井高 2600mm 基準階面積 173坪(571.9m2)
コンセント容量 40VA/m2 施工会社 清水建設
坪面積 用途 賃料 坪単価 共益費 入居可能日
5 113.91坪 事務所 募集終了登録日: 2023年04月01日
JRE銀座3丁目ビル 外観

外観

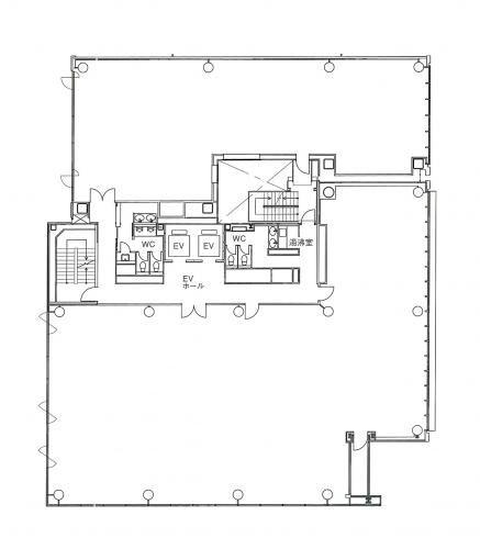
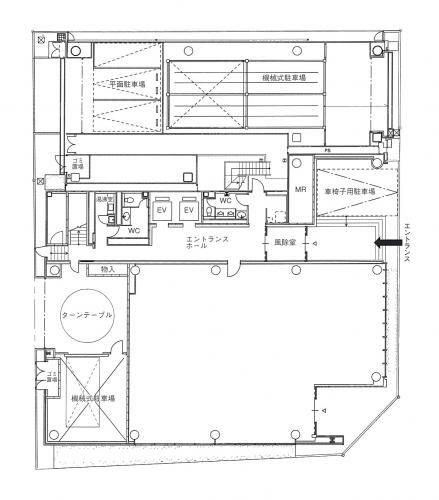
建物パンフレット

建物パンフレットは作成時点のものであり、また計画段階のものも含まれる為、実際とは異なる場合がございます。

内見やお見積りなどの各種お問い合わせ

全物件
仲介手数料無料
仲介から
入居工事まで
ワンストップで対応
経験豊富なスタッフが
スピード感をもって
対応

※「ご相談」と記載されている項目について
賃貸人が募集賃料条件を守秘義務の関係から明示していない場合に、【ご相談】と記載しております。
フリーレント(賃料免除)期間、使用面積、入居時期、テナント様の与信などによりご提示できる条件が若干変化いたします。
お手数ですが、詳細につきましては、上記よりお問い合わせください。

周辺での似た条件の物件

非公開物件 多数あり!

お問い合わせフォーム