takeofficeなら掲載物件の仲介手数料は無料です

塚本素山ビルディング

住所 東京都中央区銀座4-2-15
交通 東京メトロ銀座線銀座」 徒歩1分
JR山手線有楽町」 徒歩3分
東京メトロ日比谷線日比谷」 徒歩5分
竣工 1960年05月 構造 SRC
規模 地上9階, 地下3階 耐震基準 旧耐震基準
床構造 フリーアクセス 50mm 空調設備 セントラル空調
天井高 2850mm 基準階面積 208坪(687m2)
コンセント容量 - 施工会社

最新の募集状況や類似物件については、
こちらにお問い合わせください。

塚本素山ビルディング 外観

外観

  • 塚本素山ビルディング エントランス写真

    エントランス

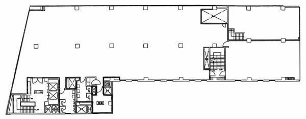
  • 基準階

    基準階

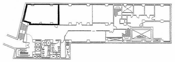
  • 1F

    1F

  • B1F

    B1F

内見やお見積りなどの各種お問い合わせ

全物件
仲介手数料無料
仲介から
入居工事まで
ワンストップで対応
経験豊富なスタッフが
スピード感をもって
対応

周辺での似た条件の物件

非公開物件 多数あり!

お問い合わせフォーム