takeofficeなら掲載物件の仲介手数料は無料です

コイズミビルディング

住所 東京都中央区銀座4-3-13
交通 東京メトロ銀座線銀座」 徒歩1分
東京メトロ有楽町線銀座一丁目」 徒歩5分
竣工 1972年11月 構造 -
規模 地上9階, 地下0階 耐震基準 旧耐震基準
床構造 - 空調設備 -
天井高 - 基準階面積 36坪(119m2)
コンセント容量 - 施工会社

最新の募集状況や類似物件については、
こちらにお問い合わせください。

コイズミビルディング 外観

外観

  • コイズミビルディング エントランス写真

    エントランス

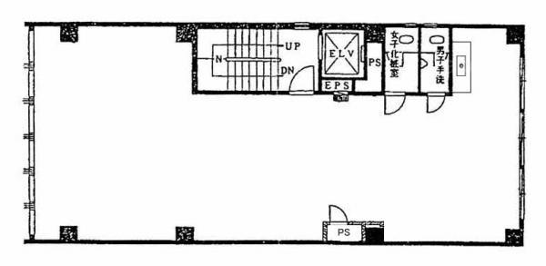
  • 基準階

    基準階

  • 1F

    1F

内見やお見積りなどの各種お問い合わせ

全物件
仲介手数料無料
仲介から
入居工事まで
ワンストップで対応
経験豊富なスタッフが
スピード感をもって
対応

周辺での似た条件の物件

非公開物件 多数あり!

お問い合わせフォーム