takeofficeなら掲載物件の仲介手数料は無料です

マニエラ銀座ビル

住所 東京都中央区銀座2-10-8
交通 東京メトロ有楽町線銀座一丁目」 徒歩2分
東京メトロ銀座線銀座」 徒歩4分
竣工 2008年12月 構造 鉄骨造
規模 地上10階 耐震基準 新耐震基準
床構造 フリーアクセス 空調設備 個別空調
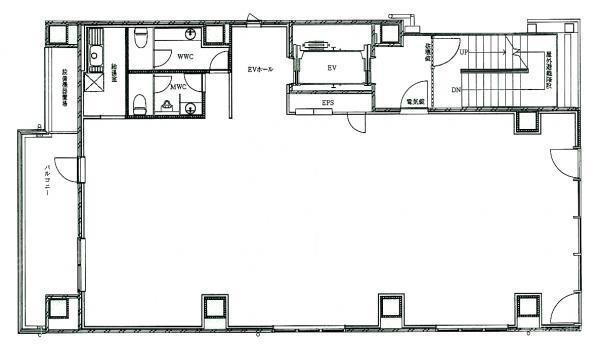
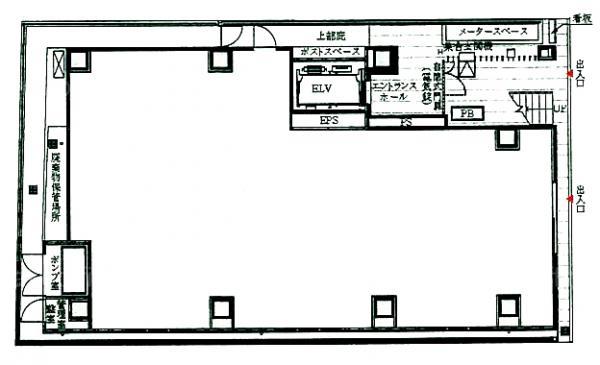
天井高 2600mm 基準階面積 42.45坪(140.33m2)
コンセント容量 - 施工会社

最新の募集状況や類似物件については、
こちらにお問い合わせください。

マニエラ銀座ビル 外観

外観

内見やお見積りなどの各種お問い合わせ

全物件
仲介手数料無料
仲介から
入居工事まで
ワンストップで対応
経験豊富なスタッフが
スピード感をもって
対応

周辺での似た条件の物件

非公開物件 多数あり!

お問い合わせフォーム