takeofficeなら掲載物件の仲介手数料は無料です

ニューギンザビル6号館

住所 東京都中央区銀座5-5-7
交通 東京メトロ銀座線銀座」 徒歩2分
竣工 1994年03月 構造 鉄骨造+RC
規模 地上7階, 地下1階 耐震基準 新耐震基準
床構造 - 空調設備 個別空調
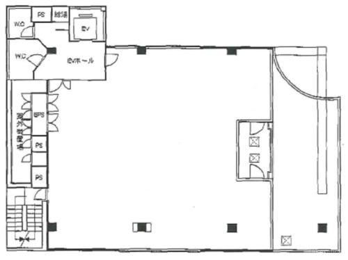
天井高 - 基準階面積 63.54坪(210.05m2)
コンセント容量 - 施工会社

最新の募集状況や類似物件については、
こちらにお問い合わせください。

ニューギンザビル6号館 外観

外観

  • ニューギンザビル6号館 エントランス写真

    エントランス

内見やお見積りなどの各種お問い合わせ

全物件
仲介手数料無料
仲介から
入居工事まで
ワンストップで対応
経験豊富なスタッフが
スピード感をもって
対応

周辺での似た条件の物件

非公開物件 多数あり!

お問い合わせフォーム