takeofficeなら掲載物件の仲介手数料は無料です

POSCO東京ビル

住所 東京都中央区銀座5-11-14
交通 東京メトロ日比谷線東銀座」 徒歩1分
東京メトロ銀座線銀座」 徒歩3分
竣工 1992年08月 構造 SRC
規模 地上8階, 地下2階 耐震基準 新耐震基準
床構造 フリーアクセス 空調設備 個別空調
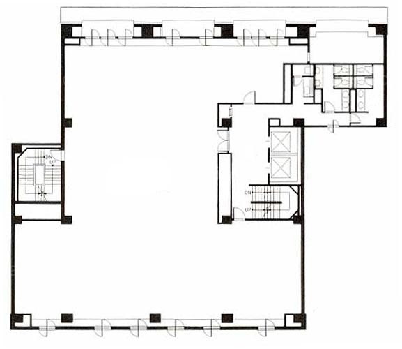
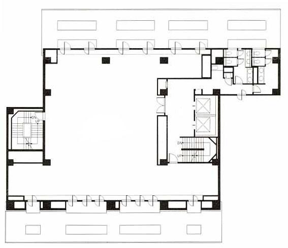
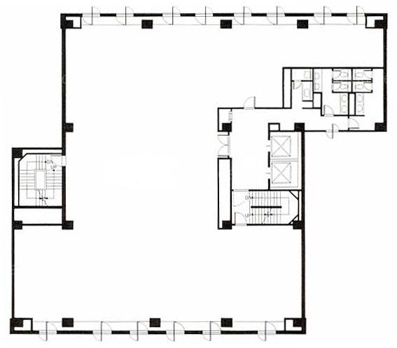
天井高 2590mm 基準階面積 156坪(517m2)
コンセント容量 - 施工会社

最新の募集状況や類似物件については、
こちらにお問い合わせください。

POSCO東京ビル 外観

外観

内見やお見積りなどの各種お問い合わせ

全物件
仲介手数料無料
仲介から
入居工事まで
ワンストップで対応
経験豊富なスタッフが
スピード感をもって
対応

周辺での似た条件の物件

非公開物件 多数あり!

お問い合わせフォーム