takeofficeなら掲載物件の仲介手数料は無料です

銀座白鶴ビル

住所 東京都中央区銀座5-12-5
交通 東京メトロ日比谷線東銀座」 徒歩1分
東京メトロ銀座線銀座」 徒歩3分
竣工 1981年05月 構造 SRC+RC
規模 地上8階, 地下3階 耐震基準 旧耐震基準
床構造 フリーアクセス 50mm 空調設備 個別空調
天井高 2550mm 基準階面積 139.43坪(460.93m2)
コンセント容量 40VA/m2 施工会社

最新の募集状況や類似物件については、
こちらにお問い合わせください。

銀座白鶴ビル 外観

外観

  • 銀座白鶴ビル エントランス写真

    エントランス

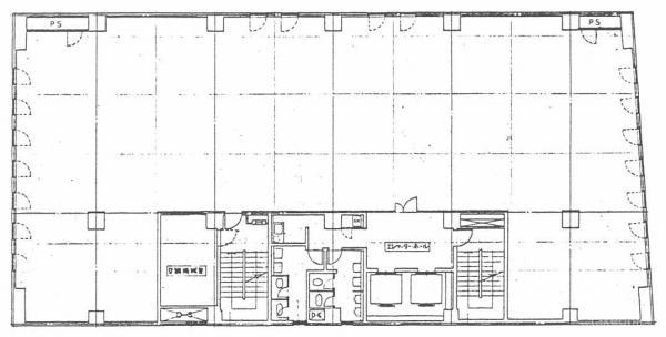
  • 基準階(3~8F)

    基準階(3~8F)

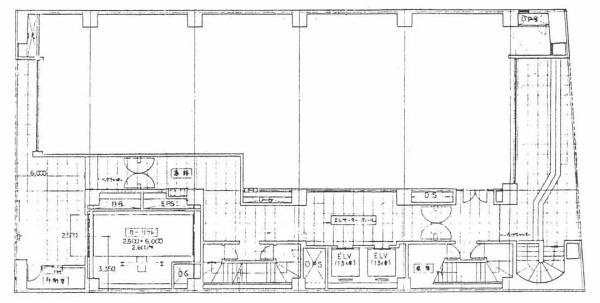
  • 1F

    1F

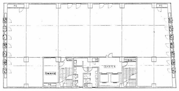
  • 2F

    2F

内見やお見積りなどの各種お問い合わせ

全物件
仲介手数料無料
仲介から
入居工事まで
ワンストップで対応
経験豊富なスタッフが
スピード感をもって
対応

周辺での似た条件の物件

非公開物件 多数あり!

お問い合わせフォーム