takeofficeなら掲載物件の仲介手数料は無料です

Daiwa銀座ビル

住所 東京都中央区銀座6-2-1
交通 東京メトロ銀座線銀座」 徒歩4分
東京メトロ日比谷線日比谷」 徒歩6分
JR山手線有楽町」 徒歩8分
竣工 1963年 構造 SRC
規模 地上9階, 地下3階 耐震基準 旧耐震基準
床構造 フリーアクセス 75mm 空調設備 個別空調
天井高 2500mm 基準階面積 224.07坪(740.73m2)
コンセント容量 - 施工会社

最新の募集状況や類似物件については、
こちらにお問い合わせください。

Daiwa銀座ビル 外観

外観

  • Daiwa銀座ビル エントランス写真

    エントランス

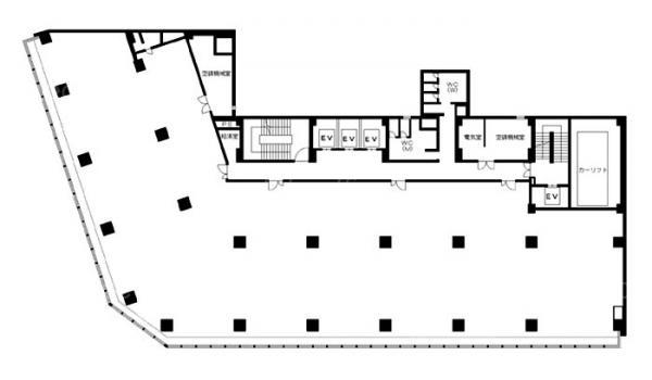
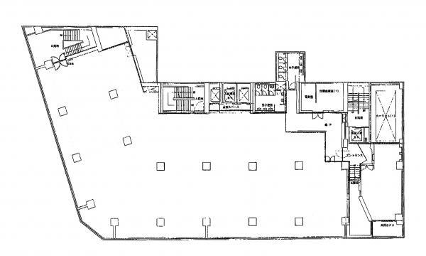
  • 基準階

    基準階

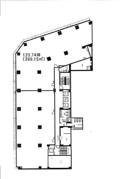
  • 1F

    1F

  • B1F

    B1F

  • B2F

    B2F

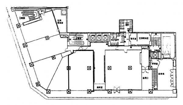
  • 8F

    8F

  • 4F

    4F

建物パンフレット

建物パンフレットは作成時点のものであり、また計画段階のものも含まれる為、実際とは異なる場合がございます。

内見やお見積りなどの各種お問い合わせ

全物件
仲介手数料無料
仲介から
入居工事まで
ワンストップで対応
経験豊富なスタッフが
スピード感をもって
対応

周辺での似た条件の物件

非公開物件 多数あり!

お問い合わせフォーム