takeofficeなら掲載物件の仲介手数料は無料です

東京朝日ビルディング

住所 東京都中央区銀座6-6-7
交通 東京メトロ銀座線銀座」 徒歩3分
東京メトロ日比谷線東銀座」 徒歩1分
竣工 1964年02月 構造 SRC
規模 地上9階, 地下3階 耐震基準 旧耐震基準
床構造 フリーアクセス 空調設備 セントラル+個別
天井高 2600mm 基準階面積 456坪(1508m2)
コンセント容量 - 施工会社

最新の募集状況や類似物件については、
こちらにお問い合わせください。

東京朝日ビルディング 外観

外観

  • 東京朝日ビルディング エントランス写真

    エントランス

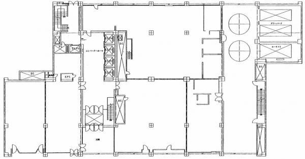
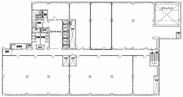
  • 2F

    2F

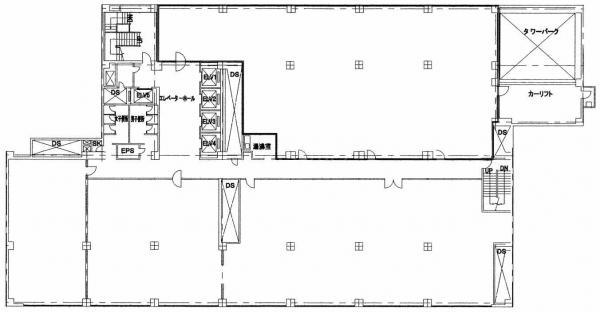
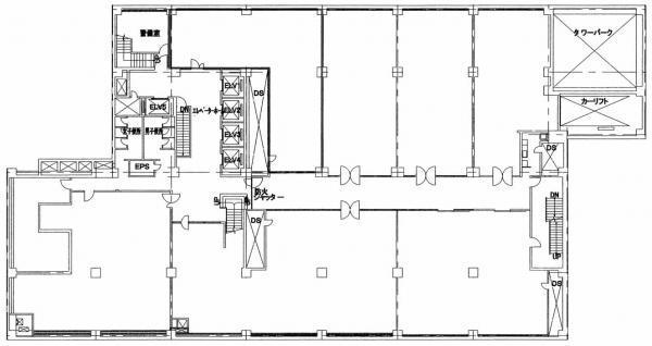
  • 1F

    1F

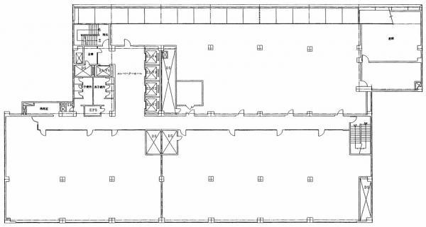
  • 3F

    3F

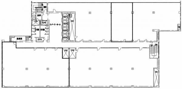
  • 4F

    4F

  • 5F

    5F

  • 7F

    7F

  • 8F

    8F

  • B1F

    B1F

内見やお見積りなどの各種お問い合わせ

全物件
仲介手数料無料
仲介から
入居工事まで
ワンストップで対応
経験豊富なスタッフが
スピード感をもって
対応

周辺での似た条件の物件

非公開物件 多数あり!

お問い合わせフォーム