takeofficeなら掲載物件の仲介手数料は無料です

第2岩月ビルディング

住所 東京都中央区銀座6-7-15
交通 東京メトロ銀座線銀座」 徒歩3分
東京メトロ千代田線日比谷」 徒歩5分
JR山手線有楽町」 徒歩7分
竣工 1973年07月 構造 RC
規模 地上7階, 地下1階 耐震基準 旧耐震基準
床構造 - 空調設備 個別空調
天井高 - 基準階面積 70.98坪(234.64m2)
コンセント容量 - 施工会社

最新の募集状況や類似物件については、
こちらにお問い合わせください。

第2岩月ビルディング 外観

外観

  • 第2岩月ビルディング エントランス写真

    エントランス

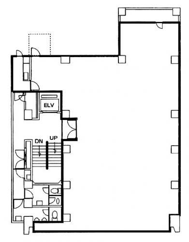
  • 基準階

    基準階

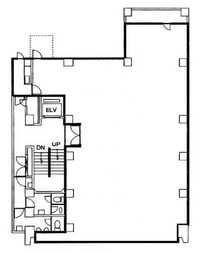
  • 6F

    6F

内見やお見積りなどの各種お問い合わせ

全物件
仲介手数料無料
仲介から
入居工事まで
ワンストップで対応
経験豊富なスタッフが
スピード感をもって
対応

周辺での似た条件の物件

非公開物件 多数あり!

お問い合わせフォーム