takeofficeなら掲載物件の仲介手数料は無料です

ニックス銀座ビル

住所 東京都中央区銀座6-11-4
交通 東京メトロ銀座線銀座」 徒歩3分
東京メトロ日比谷線東銀座」 徒歩3分
竣工 1991年03月 構造 SRC
規模 地上8階, 地下1階 耐震基準 新耐震基準
床構造 - 空調設備 個別空調
天井高 - 基準階面積 37坪(123m2)
コンセント容量 - 施工会社

最新の募集状況や類似物件については、
こちらにお問い合わせください。

ニックス銀座ビル 外観

外観

  • ニックス銀座ビル エントランス写真

    エントランス

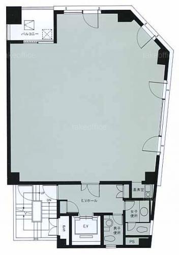
  • 基準階(2~6F)

    基準階(2~6F)

  • 1F

    1F

  • 7F

    7F

  • 8F

    8F

建物パンフレット

建物パンフレットは作成時点のものであり、また計画段階のものも含まれる為、実際とは異なる場合がございます。

内見やお見積りなどの各種お問い合わせ

全物件
仲介手数料無料
仲介から
入居工事まで
ワンストップで対応
経験豊富なスタッフが
スピード感をもって
対応

周辺での似た条件の物件

非公開物件 多数あり!

お問い合わせフォーム