takeofficeなら掲載物件の仲介手数料は無料です

東武銀座第1ビル

住所 東京都中央区銀座6-14-5
交通 東京メトロ日比谷線東銀座」 徒歩2分
東京メトロ銀座線銀座」 徒歩4分
竣工 1972年03月 構造 SRC
規模 地上9階, 地下2階 耐震基準 新耐震基準
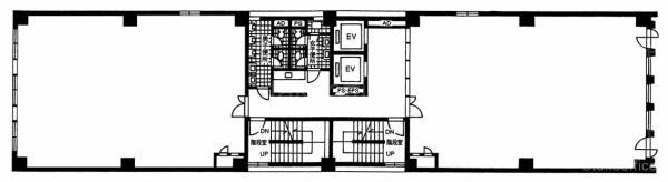
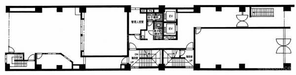
床構造 フリーアクセス 40mm 空調設備 個別空調
天井高 2400mm 基準階面積 81.03坪(267.87m2)
コンセント容量 - 施工会社

最新の募集状況や類似物件については、
こちらにお問い合わせください。

東武銀座第1ビル 外観

外観

内見やお見積りなどの各種お問い合わせ

全物件
仲介手数料無料
仲介から
入居工事まで
ワンストップで対応
経験豊富なスタッフが
スピード感をもって
対応

周辺での似た条件の物件

非公開物件 多数あり!

お問い合わせフォーム