takeofficeなら掲載物件の仲介手数料は無料です

植松ビル

住所 東京都中央区銀座7-8-5
交通 東京メトロ銀座線銀座」 徒歩3分
JR山手線新橋」 徒歩7分
都営浅草線東銀座」 徒歩6分
竣工 1964年06月 構造 SRC
規模 地上10階, 地下1階 耐震基準 旧耐震基準
床構造 - 空調設備 個別空調
天井高 - 基準階面積 50坪(165m2)
コンセント容量 - 施工会社

最新の募集状況や類似物件については、
こちらにお問い合わせください。

植松ビル 外観

外観

  • 植松ビル エントランス写真

    エントランス

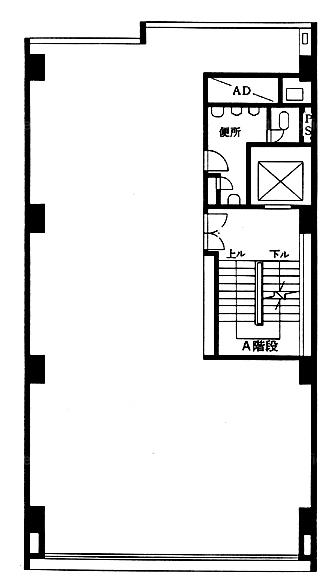
  • 基準階(3~9F)

    基準階(3~9F)

内見やお見積りなどの各種お問い合わせ

全物件
仲介手数料無料
仲介から
入居工事まで
ワンストップで対応
経験豊富なスタッフが
スピード感をもって
対応

周辺での似た条件の物件

非公開物件 多数あり!

お問い合わせフォーム