takeofficeなら掲載物件の仲介手数料は無料です

第5太陽ビル

住所 東京都中央区銀座7-10-8
交通 東京メトロ銀座線銀座」 徒歩6分
東京メトロ日比谷線東銀座」 徒歩6分
都営浅草線新橋」 徒歩5分
竣工 1970年09月 構造 SRC
規模 地上9階, 地下1階 耐震基準 旧耐震基準
床構造 - 空調設備 個別空調
天井高 2380mm 基準階面積 30坪(101m2)
コンセント容量 - 施工会社

最新の募集状況や類似物件については、
こちらにお問い合わせください。

第5太陽ビル 外観

外観

  • 第5太陽ビル エントランス写真

    エントランス

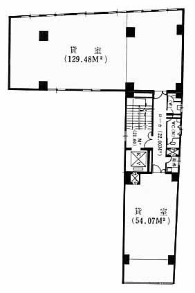
  • 基準階(2~4F)

    基準階(2~4F)

  • 1F

    1F

  • 5F

    5F

  • 6F

    6F

  • 7~9F

    7~9F

内見やお見積りなどの各種お問い合わせ

全物件
仲介手数料無料
仲介から
入居工事まで
ワンストップで対応
経験豊富なスタッフが
スピード感をもって
対応

周辺での似た条件の物件

非公開物件 多数あり!

お問い合わせフォーム