takeofficeなら掲載物件の仲介手数料は無料です

大榮會館

住所 東京都中央区銀座7-12-14
交通 都営浅草線東銀座」 徒歩4分
東京メトロ銀座線銀座」 徒歩5分
東京メトロ銀座線新橋」 徒歩5分
竣工 1954年08月 構造 RC
規模 地上7階, 地下1階 耐震基準 旧耐震基準
床構造 フリーアクセス 50mm 空調設備 個別空調
天井高 2600mm 基準階面積 75坪(247m2)
コンセント容量 - 施工会社

最新の募集状況や類似物件については、
こちらにお問い合わせください。

大榮會館 外観

外観

  • 大榮會館 エントランス写真

    エントランス

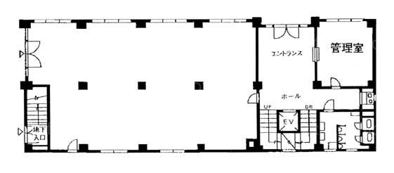
  • 2F

    2F

  • 1F

    1F

  • 3F

    3F

  • 4F

    4F

  • 5F

    5F

  • 6F

    6F

内見やお見積りなどの各種お問い合わせ

全物件
仲介手数料無料
仲介から
入居工事まで
ワンストップで対応
経験豊富なスタッフが
スピード感をもって
対応

周辺での似た条件の物件

非公開物件 多数あり!

お問い合わせフォーム