takeofficeなら掲載物件の仲介手数料は無料です

サガミビル

住所 東京都中央区銀座7-13-6
交通 都営浅草線東銀座」 徒歩3分
都営大江戸線汐留」 徒歩5分
竣工 1991年07月 構造 鉄骨造
規模 地上11階 耐震基準 新耐震基準
床構造 - 空調設備 個別空調
天井高 2500mm 基準階面積 29.71坪(98.21m2)
コンセント容量 - 施工会社

最新の募集状況や類似物件については、
こちらにお問い合わせください。

サガミビル 外観

外観

  • サガミビル エントランス写真

    エントランス

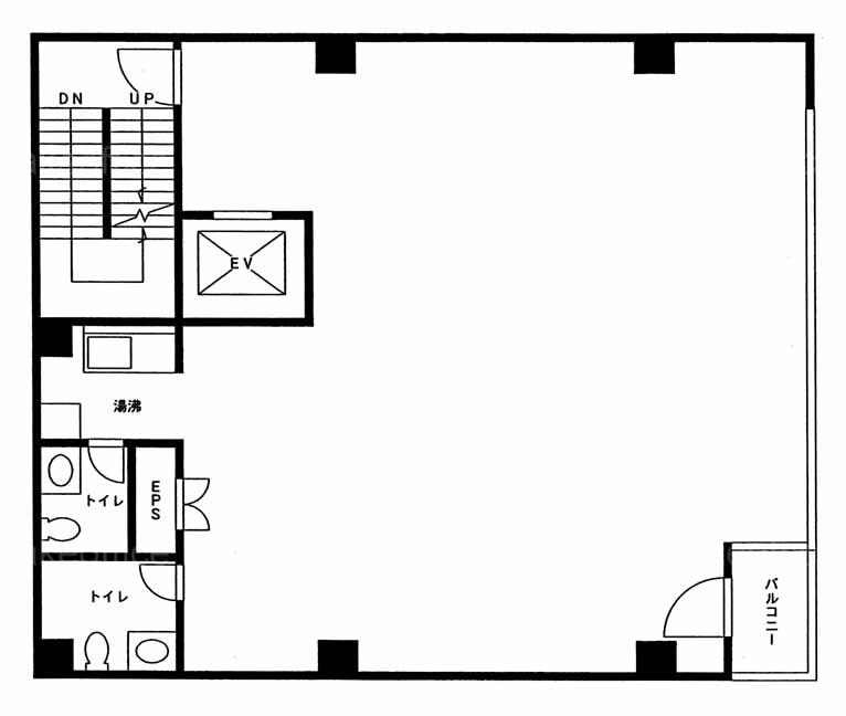
  • 3~10F

    3~10F

  • 1F

    1F

  • 2F

    2F

内見やお見積りなどの各種お問い合わせ

全物件
仲介手数料無料
仲介から
入居工事まで
ワンストップで対応
経験豊富なスタッフが
スピード感をもって
対応

周辺での似た条件の物件

非公開物件 多数あり!

お問い合わせフォーム