takeofficeなら掲載物件の仲介手数料は無料です

太陽銀座ビル

住所 東京都中央区銀座7-14-16
交通 東京メトロ日比谷線東銀座」 徒歩3分
東京メトロ銀座線銀座」 徒歩6分
JR山手線新橋」 徒歩7分
竣工 1971年02月 構造 SRC
規模 地上10階, 地下1階 耐震基準 新耐震基準
床構造 - 空調設備 フロア別空調
天井高 2450mm 基準階面積 86.73坪(286.71m2)
コンセント容量 - 施工会社

最新の募集状況や類似物件については、
こちらにお問い合わせください。

太陽銀座ビル 外観

外観

  • 太陽銀座ビル エントランス写真

    エントランス

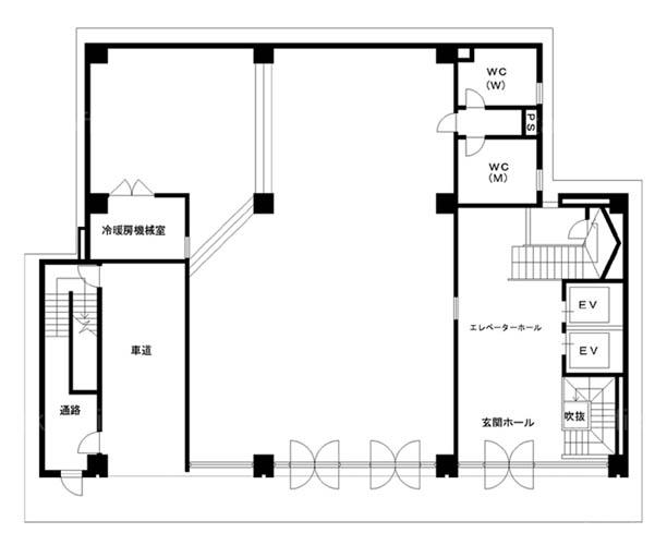
  • 基準階(2~9F)

    基準階(2~9F)

  • 1F

    1F

内見やお見積りなどの各種お問い合わせ

全物件
仲介手数料無料
仲介から
入居工事まで
ワンストップで対応
経験豊富なスタッフが
スピード感をもって
対応

周辺での似た条件の物件

非公開物件 多数あり!

お問い合わせフォーム