takeofficeなら掲載物件の仲介手数料は無料です

銀ビル

住所 東京都中央区銀座7-15-18
交通 東京メトロ日比谷線東銀座」 徒歩4分
都営大江戸線築地市場」 徒歩5分
東京メトロ日比谷線築地」 徒歩7分
竣工 1960年05月 構造 SRC
規模 地上8階, 地下2階 耐震基準 旧耐震基準
床構造 - 空調設備 個別空調
天井高 - 基準階面積 34.6坪(114.38m2)
コンセント容量 - 施工会社

最新の募集状況や類似物件については、
こちらにお問い合わせください。

銀ビル 外観

外観

  • 銀ビル エントランス写真

    エントランス

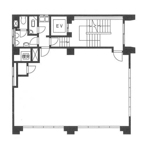
  • 2~7F

    2~7F

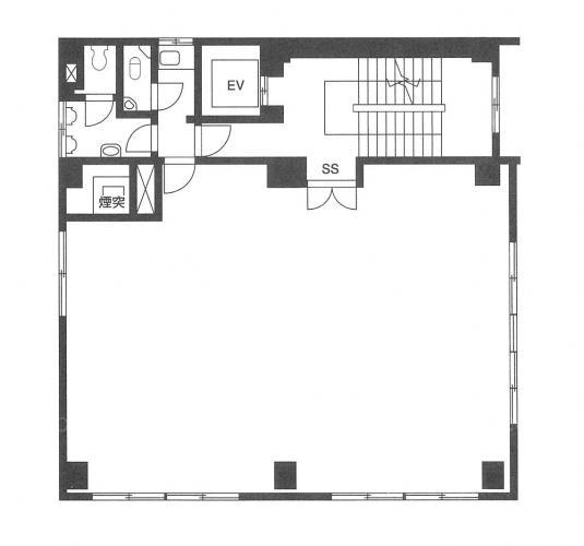
  • 1F

    1F

内見やお見積りなどの各種お問い合わせ

全物件
仲介手数料無料
仲介から
入居工事まで
ワンストップで対応
経験豊富なスタッフが
スピード感をもって
対応

※「ご相談」と記載されている項目について
賃貸人が募集賃料条件を守秘義務の関係から明示していない場合に、【ご相談】と記載しております。
フリーレント(賃料免除)期間、使用面積、入居時期、テナント様の与信などによりご提示できる条件が若干変化いたします。
お手数ですが、詳細につきましては、上記よりお問い合わせください。

周辺での似た条件の物件

非公開物件 多数あり!

お問い合わせフォーム