takeofficeなら掲載物件の仲介手数料は無料です

銀座イーストビル

住所 東京都中央区銀座7-16-14
交通 都営大江戸線築地市場」 徒歩3分
東京メトロ日比谷線東銀座」 徒歩5分
JR山手線新橋」 徒歩8分
竣工 1987年12月 構造 SRC
規模 地上9階, 地下1階 耐震基準 新耐震基準
床構造 フリーアクセス 60mm 空調設備 個別空調
天井高 2450mm 基準階面積 124.53坪(411.67m2)
コンセント容量 - 施工会社

最新の募集状況や類似物件については、
こちらにお問い合わせください。

銀座イーストビル 外観

外観

  • 銀座イーストビル エントランス写真

    エントランス

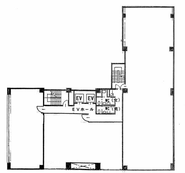
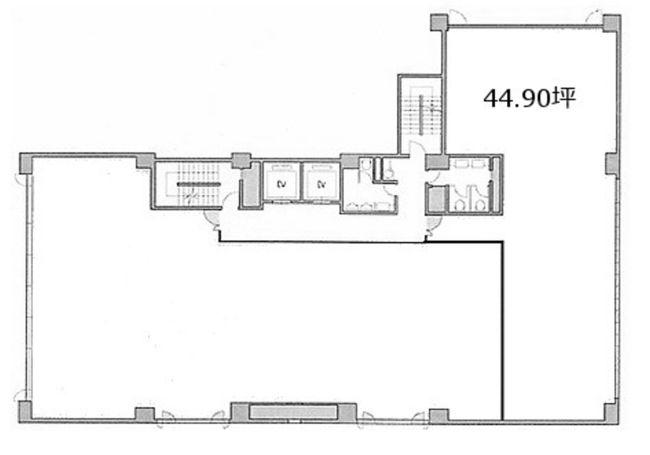
  • 基準階(3~9F)

    基準階(3~9F)

  • 1F

    1F

  • 2F

    2F

  • 4F

    4F

内見やお見積りなどの各種お問い合わせ

全物件
仲介手数料無料
仲介から
入居工事まで
ワンストップで対応
経験豊富なスタッフが
スピード感をもって
対応

周辺での似た条件の物件

非公開物件 多数あり!

お問い合わせフォーム