takeofficeなら掲載物件の仲介手数料は無料です

第2サンビル

住所 東京都中央区銀座8-12-11
交通 JR山手線新橋」 徒歩4分
都営大江戸線汐留」 徒歩5分
東京メトロ銀座線銀座」 徒歩7分
竣工 1958年03月 構造 RC
規模 地上6階, 地下1階 耐震基準 旧耐震基準
床構造 - 空調設備 個別空調
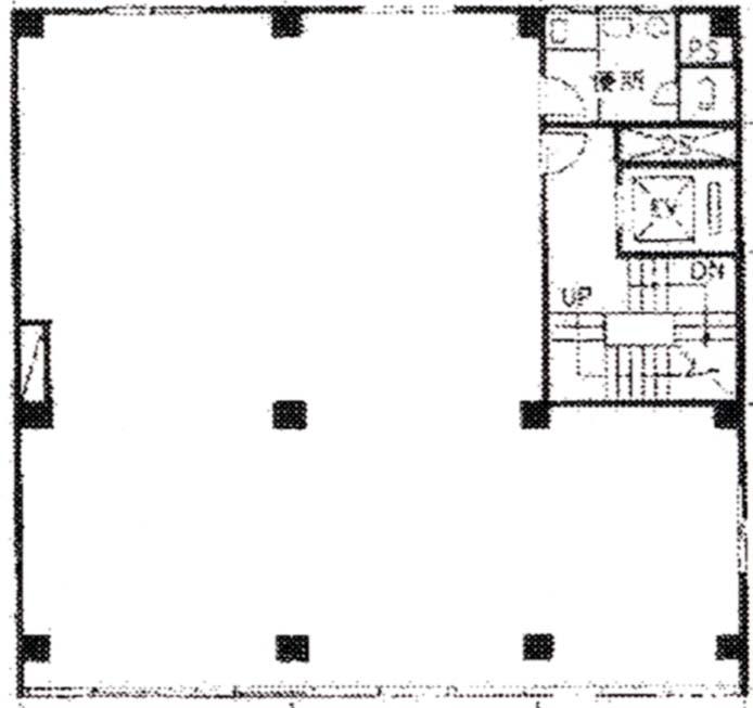
天井高 2700mm 基準階面積 40坪(132m2)
コンセント容量 - 施工会社

最新の募集状況や類似物件については、
こちらにお問い合わせください。

第2サンビル 外観

外観

  • 第2サンビル エントランス写真

    エントランス

  • 基準階

    基準階

内見やお見積りなどの各種お問い合わせ

全物件
仲介手数料無料
仲介から
入居工事まで
ワンストップで対応
経験豊富なスタッフが
スピード感をもって
対応

周辺での似た条件の物件

非公開物件 多数あり!

お問い合わせフォーム