takeofficeなら掲載物件の仲介手数料は無料です

第一生命銀座フォリー

住所 東京都中央区銀座5-7-19
交通 東京メトロ銀座線銀座」 徒歩1分
JR山手線有楽町」 徒歩3分
竣工 1990年08月 構造 SRC
規模 地上9階, 地下1階 耐震基準 新耐震基準
床構造 - 空調設備 -
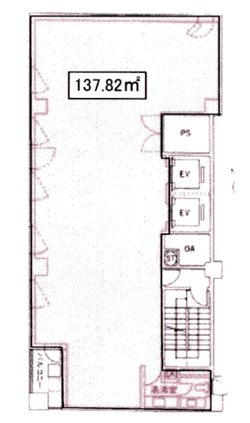
天井高 - 基準階面積 41.69坪(137.82m2)
コンセント容量 - 施工会社

最新の募集状況や類似物件については、
こちらにお問い合わせください。

第一生命銀座フォリー 外観

外観

  • NOW PRINTING

    エントランス

内見やお見積りなどの各種お問い合わせ

全物件
仲介手数料無料
仲介から
入居工事まで
ワンストップで対応
経験豊富なスタッフが
スピード感をもって
対応

周辺での似た条件の物件

非公開物件 多数あり!

お問い合わせフォーム