takeofficeなら掲載物件の仲介手数料は無料です

モンブラン銀座ビル

住所 東京都中央区銀座7-9-11
交通 JR山手線新橋」 徒歩5分
東京メトロ銀座線銀座」 徒歩3分
竣工 2004年 月 構造 鉄骨造
規模 地上10階, 地下1階 耐震基準 新耐震基準
床構造 - 空調設備 -
天井高 - 基準階面積 --
コンセント容量 - 施工会社

最新の募集状況や類似物件については、
こちらにお問い合わせください。

モンブラン銀座ビル 外観

外観

  • NOW PRINTING

    エントランス

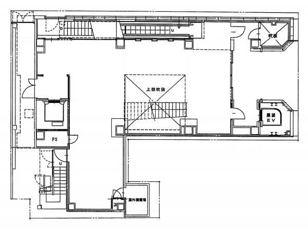
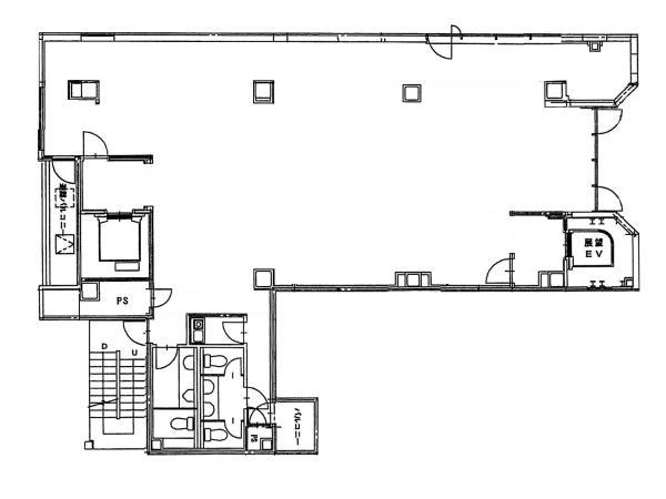
  • 2F

    2F

  • 1F

    1F

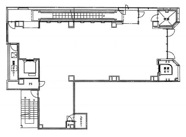
  • 3F

    3F

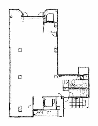
  • 4F

    4F

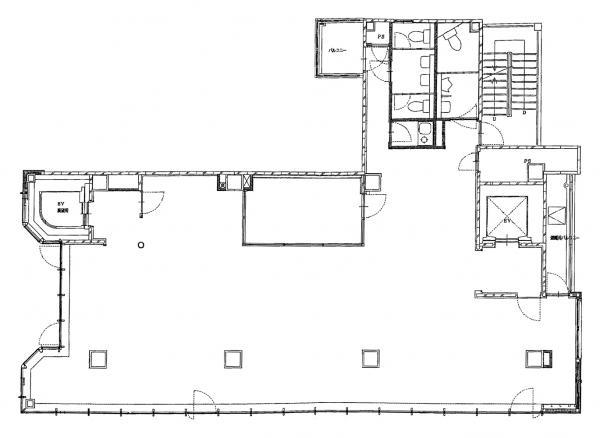
  • 5F

    5F

  • 6F

    6F

  • 7F

    7F

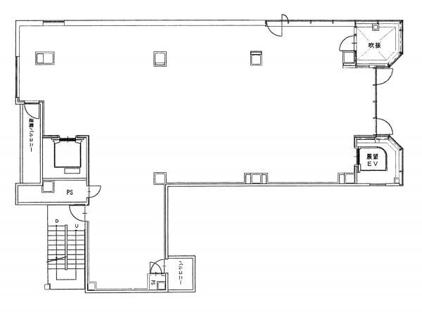
  • 9F

    9F

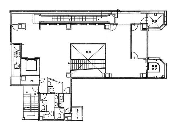
  • 10F

    10F

内見やお見積りなどの各種お問い合わせ

全物件
仲介手数料無料
仲介から
入居工事まで
ワンストップで対応
経験豊富なスタッフが
スピード感をもって
対応

周辺での似た条件の物件

非公開物件 多数あり!

お問い合わせフォーム