takeofficeなら掲載物件の仲介手数料は無料です

デュープレックス銀座タワー5/13

住所 東京都中央区銀座5-13-19
交通 都営浅草線東銀座」 徒歩1分
東京メトロ銀座線銀座」 徒歩5分
竣工 2007年04月 構造 鉄骨造+SRC
規模 地上13階, 地下1階 耐震基準 -
床構造 - 空調設備
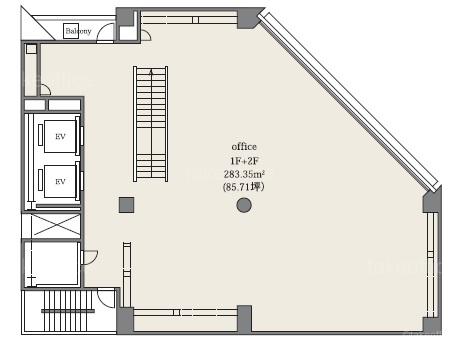
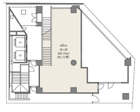
天井高 - 基準階面積 62.56坪(206.81m2)
コンセント容量 - 施工会社

最新の募集状況や類似物件については、
こちらにお問い合わせください。

デュープレックス銀座タワー5/13 外観

外観

内見やお見積りなどの各種お問い合わせ

全物件
仲介手数料無料
仲介から
入居工事まで
ワンストップで対応
経験豊富なスタッフが
スピード感をもって
対応

周辺での似た条件の物件

非公開物件 多数あり!

お問い合わせフォーム