takeofficeなら掲載物件の仲介手数料は無料です

アイオス銀座

住所 東京都中央区銀座8-17-5
交通 JR山手線新橋」 徒歩8分
東京メトロ日比谷線銀座」 徒歩10分
竣工 2014年06月 構造 RC
規模 地上10階 耐震基準 新耐震基準
床構造 フリーアクセス 空調設備 個別空調
天井高 - 基準階面積 --
コンセント容量 - 施工会社

最新の募集状況や類似物件については、
こちらにお問い合わせください。

アイオス銀座 外観

外観

  • アイオス銀座 エントランス写真

    エントランス

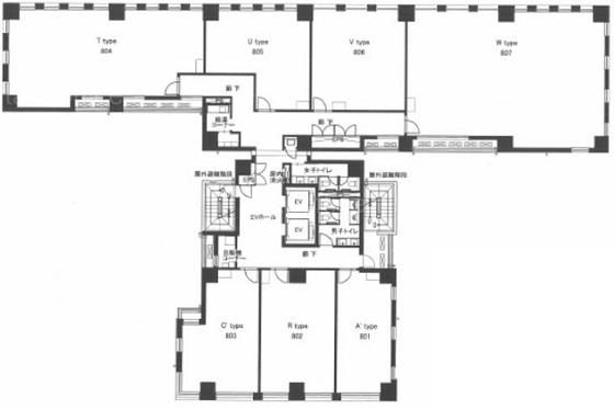
  • 基準階(3~5F)

    基準階(3~5F)

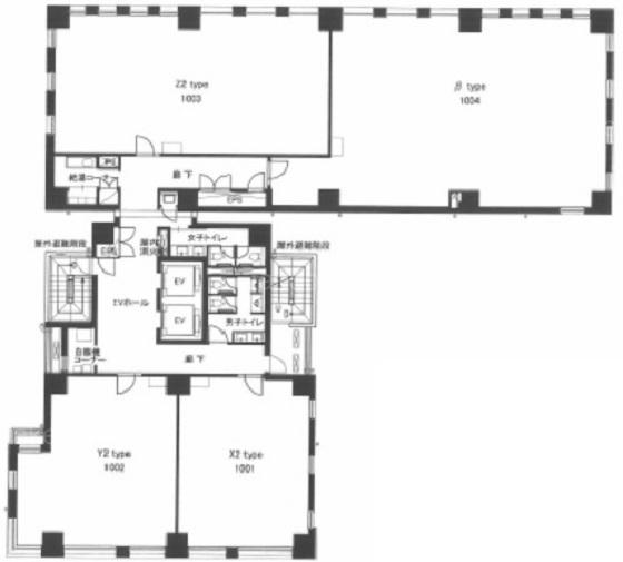
  • 2F

    2F

  • 6F

    6F

  • 7F

    7F

  • 8F

    8F

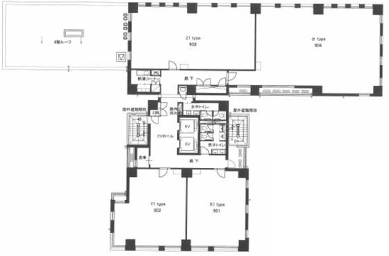
  • 9F

    9F

  • 10F

    10F

内見やお見積りなどの各種お問い合わせ

全物件
仲介手数料無料
仲介から
入居工事まで
ワンストップで対応
経験豊富なスタッフが
スピード感をもって
対応

周辺での似た条件の物件

非公開物件 多数あり!

お問い合わせフォーム