takeofficeなら掲載物件の仲介手数料は無料です

オクソンビル

住所 東京都中央区新富1-2-13
交通 都営浅草線宝町」 徒歩4分
東京メトロ有楽町線新富町」 徒歩5分
東京メトロ銀座線京橋」 徒歩6分
竣工 1991年08月 構造 SRC+RC
規模 地上8階, 地下1階 耐震基準 新耐震基準
床構造 フリーアクセス 空調設備 個別空調
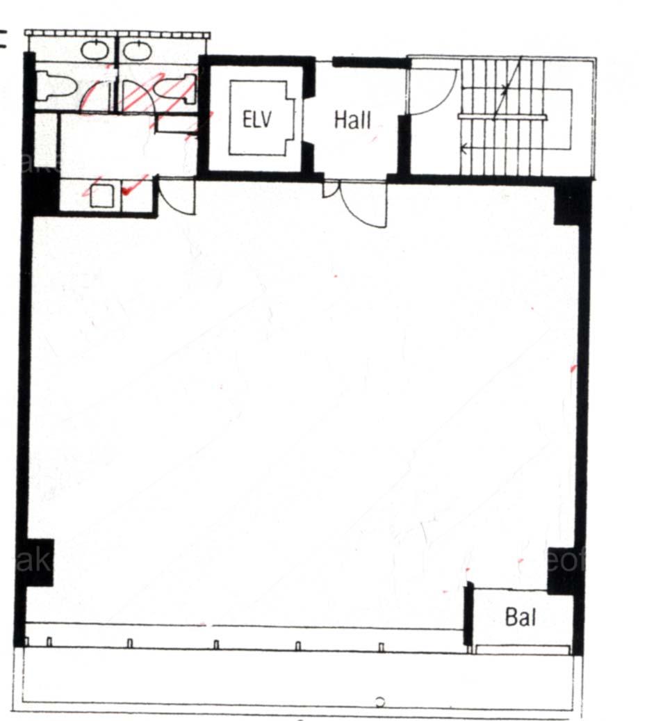
天井高 2550mm 基準階面積 31.75坪(104.96m2)
コンセント容量 - 施工会社

最新の募集状況や類似物件については、
こちらにお問い合わせください。

オクソンビル 外観

外観

  • オクソンビル エントランス写真

    エントランス

  • 基準階

    基準階

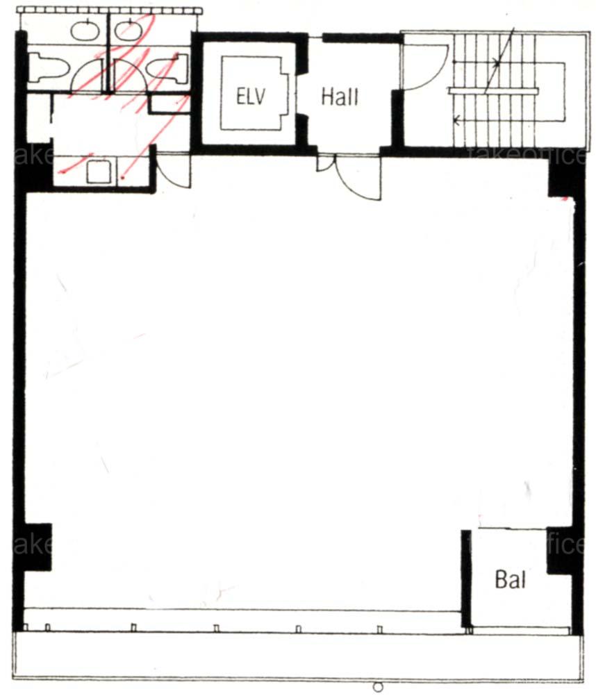
  • 5F

    5F

内見やお見積りなどの各種お問い合わせ

全物件
仲介手数料無料
仲介から
入居工事まで
ワンストップで対応
経験豊富なスタッフが
スピード感をもって
対応

周辺での似た条件の物件

非公開物件 多数あり!

お問い合わせフォーム