takeofficeなら掲載物件の仲介手数料は無料です

GGIC京橋ビル

住所 東京都中央区新富1-6-1
交通 東京メトロ有楽町線新富町」 徒歩4分
都営浅草線宝町」 徒歩5分
JR京葉線八丁堀」 徒歩6分
竣工 1984年 月 構造 SRC
規模 地上9階 耐震基準 新耐震基準
床構造 フリーアクセス 50mm 空調設備 個別空調
天井高 2400mm 基準階面積 60.2坪(199.01m2)
コンセント容量 - 施工会社

最新の募集状況や類似物件については、
こちらにお問い合わせください。

GGIC京橋ビル 外観

外観

  • GGIC京橋ビル エントランス写真

    エントランス

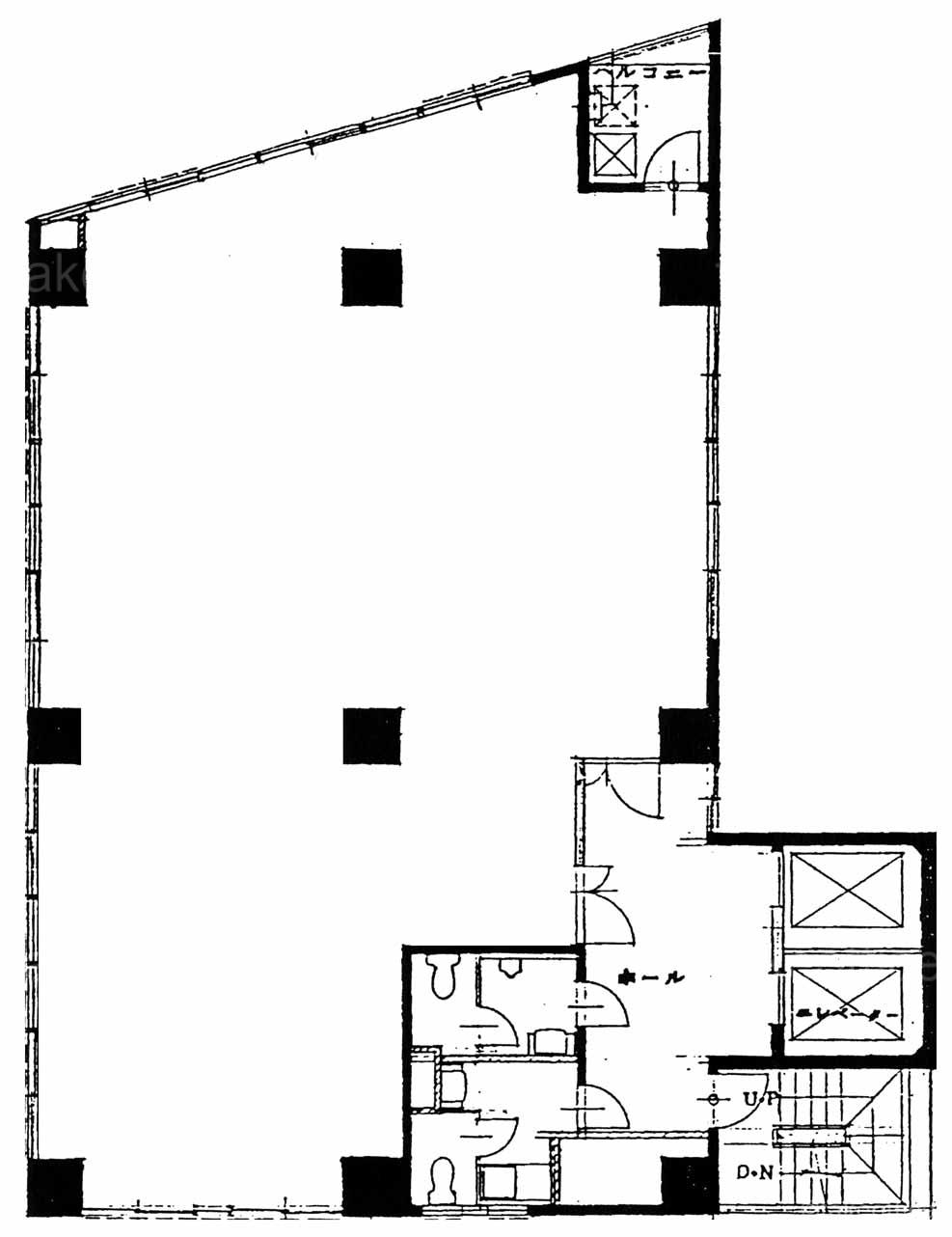
  • 基準階(2~8F)

    基準階(2~8F)

  • 1F

    1F

建物パンフレット

建物パンフレットは作成時点のものであり、また計画段階のものも含まれる為、実際とは異なる場合がございます。

内見やお見積りなどの各種お問い合わせ

全物件
仲介手数料無料
仲介から
入居工事まで
ワンストップで対応
経験豊富なスタッフが
スピード感をもって
対応

周辺での似た条件の物件

非公開物件 多数あり!

お問い合わせフォーム