takeofficeなら掲載物件の仲介手数料は無料です

ソーエイビル

住所 東京都中央区新富2-4-4
交通 東京メトロ有楽町線新富町」 徒歩1分
東京メトロ日比谷線築地」 徒歩6分
都営浅草線宝町」 徒歩8分
竣工 1990年 月 構造 鉄骨造
規模 地上9階 耐震基準 新耐震基準
床構造 フリーアクセス 空調設備 個別空調
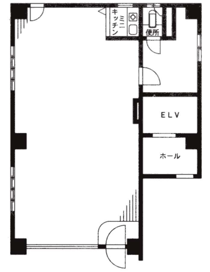
天井高 - 基準階面積 20.58坪(68.03m2)
コンセント容量 - 施工会社

最新の募集状況や類似物件については、
こちらにお問い合わせください。

ソーエイビル 外観

外観

  • ソーエイビル エントランス写真

    エントランス

  • 1F

    1F

  • 9F

    9F

内見やお見積りなどの各種お問い合わせ

全物件
仲介手数料無料
仲介から
入居工事まで
ワンストップで対応
経験豊富なスタッフが
スピード感をもって
対応

周辺での似た条件の物件

非公開物件 多数あり!

お問い合わせフォーム