takeofficeなら掲載物件の仲介手数料は無料です

今里ビル

住所 東京都中央区築地1-9-12
交通 東京メトロ有楽町線新富町」 徒歩3分
東京メトロ日比谷線築地」 徒歩3分
都営浅草線東銀座」 徒歩5分
竣工 1988年02月 構造 鉄骨造
規模 地上7階 耐震基準 新耐震基準
床構造 フリーアクセス 50mm 空調設備 個別空調
天井高 2500mm 基準階面積 35.86坪(118.55m2)
コンセント容量 - 施工会社

最新の募集状況や類似物件については、
こちらにお問い合わせください。

今里ビル 外観

外観

  • 今里ビル エントランス写真

    エントランス

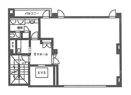
  • 基準階(2~4F)

    基準階(2~4F)

  • 1F

    1F

  • 5F

    5F

  • 6F

    6F

  • 7F

    7F

内見やお見積りなどの各種お問い合わせ

全物件
仲介手数料無料
仲介から
入居工事まで
ワンストップで対応
経験豊富なスタッフが
スピード感をもって
対応

周辺での似た条件の物件

非公開物件 多数あり!

お問い合わせフォーム