takeofficeなら掲載物件の仲介手数料は無料です

築地えとビル

住所 東京都中央区築地1-12-6
交通 東京メトロ日比谷線築地」 徒歩2分
東京メトロ有楽町線新富町」 徒歩3分
都営浅草線東銀座」 徒歩6分
竣工 1996年02月 構造 SRC+鉄骨造
規模 地上9階, 地下1階 耐震基準 新耐震基準
床構造 フリーアクセス 60mm 空調設備 個別空調
天井高 2550mm 基準階面積 235.2坪(777.52m2)
コンセント容量 45VA/m2 施工会社

最新の募集状況や類似物件については、
こちらにお問い合わせください。

築地えとビル 外観

外観

  • 築地えとビル エントランス写真

    エントランス

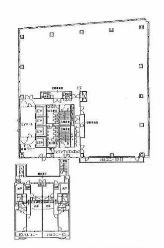
  • 基準階

    基準階

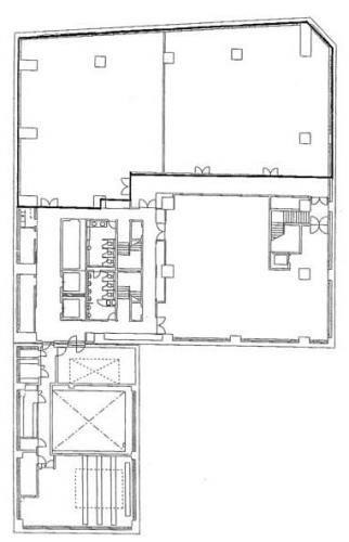
  • 1F

    1F

  • B1F

    B1F

内見やお見積りなどの各種お問い合わせ

全物件
仲介手数料無料
仲介から
入居工事まで
ワンストップで対応
経験豊富なスタッフが
スピード感をもって
対応

※「ご相談」と記載されている項目について
賃貸人が募集賃料条件を守秘義務の関係から明示していない場合に、【ご相談】と記載しております。
フリーレント(賃料免除)期間、使用面積、入居時期、テナント様の与信などによりご提示できる条件が若干変化いたします。
お手数ですが、詳細につきましては、上記よりお問い合わせください。

周辺での似た条件の物件

非公開物件 多数あり!

お問い合わせフォーム