takeofficeなら掲載物件の仲介手数料は無料です

北水ビル第3

住所 東京都中央区築地1-13-13
交通 都営浅草線東銀座」 徒歩3分
東京メトロ日比谷線築地」 徒歩3分
都営大江戸線築地市場」 徒歩6分
竣工 1990年01月 構造 RC
規模 地上11階, 地下1階 耐震基準 新耐震基準
床構造 フリーアクセス 50mm 空調設備 個別空調
天井高 2360mm 基準階面積 46.36坪(153.26m2)
コンセント容量 - 施工会社

最新の募集状況や類似物件については、
こちらにお問い合わせください。

北水ビル第3 外観

外観

  • 北水ビル第3 エントランス写真

    エントランス

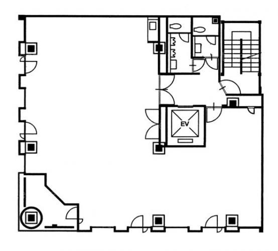
  • 2~8F

    2~8F

  • 1F

    1F

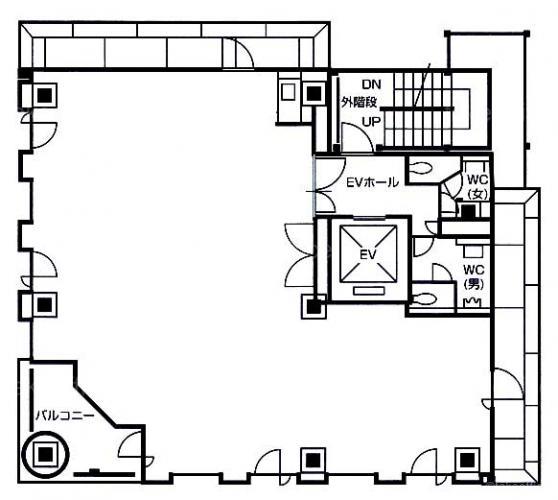
  • 10~11F

    10~11F

内見やお見積りなどの各種お問い合わせ

全物件
仲介手数料無料
仲介から
入居工事まで
ワンストップで対応
経験豊富なスタッフが
スピード感をもって
対応

周辺での似た条件の物件

非公開物件 多数あり!

お問い合わせフォーム