takeofficeなら掲載物件の仲介手数料は無料です

第29興和ビル

住所 東京都中央区築地2-11-24
交通 東京メトロ日比谷線築地」 徒歩3分
東京メトロ有楽町線新富町」 徒歩5分
都営浅草線東銀座」 徒歩7分
竣工 1975年05月 構造 SRC
規模 地上10階 耐震基準 新耐震基準
床構造 フリーアクセス 50mm 空調設備 セントラル空調
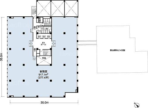
天井高 2515mm 基準階面積 277.44坪(917.16m2)
コンセント容量 - 施工会社

最新の募集状況や類似物件については、
こちらにお問い合わせください。

第29興和ビル 外観

外観

  • NOW PRINTING

    エントランス

内見やお見積りなどの各種お問い合わせ

全物件
仲介手数料無料
仲介から
入居工事まで
ワンストップで対応
経験豊富なスタッフが
スピード感をもって
対応

周辺での似た条件の物件

非公開物件 多数あり!

お問い合わせフォーム