takeofficeなら掲載物件の仲介手数料は無料です

中川築地ビル

住所 東京都中央区築地3-5-4
交通 東京メトロ日比谷線築地」 徒歩2分
東京メトロ有楽町線新富町」 徒歩3分
JR京葉線八丁堀」 徒歩9分
竣工 1974年03月 構造 SRC+RC
規模 地上9階, 地下1階 耐震基準 旧耐震基準
床構造 フリーアクセス 空調設備 フロア別空調
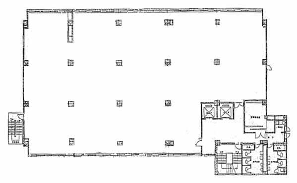
天井高 - 基準階面積 230.95坪(763.47m2)
コンセント容量 - 施工会社

最新の募集状況や類似物件については、
こちらにお問い合わせください。

中川築地ビル 外観

外観

  • 中川築地ビル エントランス写真

    エントランス

  • 基準階

    基準階

  • 1F

    1F

内見やお見積りなどの各種お問い合わせ

全物件
仲介手数料無料
仲介から
入居工事まで
ワンストップで対応
経験豊富なスタッフが
スピード感をもって
対応

周辺での似た条件の物件

非公開物件 多数あり!

お問い合わせフォーム